15+ mẫu nhà vệ sinh công cộng bền, đẹp, tiện nghi, hiện đại 2026
10 March 2026
Trong bối cảnh đô thị hóa thông minh năm 2026, nhà vệ sinh công cộng không còn chỉ là công trình phụ trợ mà đã trở thành biểu tượng cho sự văn minh và phát triển của một thành phố. Việc lựa chọn thiết kế vừa đảm bảo công năng, vừa thẩm mỹ đang là ưu tiên hàng đầu của các nhà đầu tư. Trong bài viết dưới đây cùng INAX tham khảo 15+ mẫu toilet công cộng bền, đẹp, tiện nghi 2026 được ứng dụng phổ biến nhé!
NỘI DUNG BÀI VIẾT
Nhà vệ sinh công cộng là gì?
Nhà vệ sinh công cộng (WC công cộng, toilet công cộng) là công trình vệ sinh được xây dựng tại các khu vực tập trung đông người như công viên, bến xe, trung tâm thương mại hoặc các tuyến phố đi bộ nhằm phục vụ nhu cầu vệ sinh cá nhân của mọi người.
Hiện nay, nơi tích hợp không chỉ khu vực vệ sinh mà còn có máy bán nước tự động, trạm sạc điện thoại và hệ thống xử lý nước thải tại chỗ thân thiện với môi trường.

WC công cộng là công trình vệ sinh xây dựng tại các khu vực đông người (Nguồn: Lixil.com)
Số lượng phòng của WC công cộng
Việc xác định số lượng phòng phụ thuộc vào lưu lượng người qua lại và diện tích khu vực lắp đặt. Thông thường, một phòng vệ sinh công cộng sẽ có 2 khu vực là nhà vệ sinh nam và nhà vệ sinh nữ. Tùy vào khu vực mà số lượng buồng vệ sinh và kích thước nhà vệ sinh sẽ khác nhau. Số lượng nhà vệ sinh công cộng tiêu chuẩn tối thiểu là 2 phòng (buồng) vệ sinh.
Ngoài ra, ở một số toilet công cộng còn có phòng vệ sinh dành cho người khuyết tật riêng biệt với lối đi rộng rãi và thanh vịn hỗ trợ trợ.
Tiêu chuẩn thiết kế WC công cộng mới nhất
Để đạt chuẩn trong năm 2026, thiết kế cần đáp ứng các tiêu chí khắt khe về cả kỹ thuật lẫn trải nghiệm người dùng:
Tiêu chuẩn kích thước của nhà vệ sinh công cộng
- Tổng diện tích toilet công cộng thể hiện trên bản vẽ thiết kế thường tối thiểu từ 2 – 3m². Với các khu vực có mật độ người sử dụng cao như điểm du lịch, khu dân cư đông đúc, diện tích cần được mở rộng tương ứng. Để đáp ứng tốt nhu cầu sử dụng, WC công cộng nên có diện tích từ 5 – 10m².
- Mỗi buồng vệ sinh riêng lẻ cần đảm bảo diện tích tối thiểu 2,5m² nhằm tạo sự thoải mái khi sử dụng. Cửa buồng vệ sinh thường được thiết kế theo các kích thước tiêu chuẩn như 190 x 68 cm, 210 x 82 cm hoặc 230 x 102 cm, phù hợp với nhiều đối tượng người dùng.
- WC công cộng cần cao tối thiểu 220 cm tính từ mặt sàn đến trần.
- Khoảng cách tiêu chuẩn từ mặt sàn đến chậu rửa mặt (lavabo) dao động từ 80 – 85 cm.

Khoảng cách mặt sàn đến chậu rửa dao động từ 80 – 85 cm
Tiêu chuẩn vị trí xây dựng nhà vệ sinh công cộng
- Đặt nhà vệ sinh công cộng tại khu vực cao ráo, khô thoáng, không xảy ra ngập úng.
- Vị trí xây dựng cách xa nguồn nước sinh hoạt tối thiểu 10m để tránh ô nhiễm.
- Bố trí toilet công cộng ở nơi dễ tiếp cận, thuận tiện cho người sử dụng.
- Có bảng chỉ dẫn rõ ràng, dễ nhận biết.
- Đảm bảo an ninh, trật tự trong quá trình sử dụng.
Tiêu chuẩn mặt sàn nhà vệ sinh
- Mặt sàn và rãnh thoát nước được thi công phẳng, nhẵn, không gồ ghề.
- Hạn chế đọng nước và sụt lún, giúp tăng độ bền công trình.
- Thiết kế độ dốc sàn hợp lý, phù hợp với diện tích và không gian tổng thể.
- Vệ sinh, làm sạch mặt sàn thường xuyên để hạn chế vi khuẩn và vi sinh vật gây hại.
Tiêu chuẩn bể phốt và nhận diện khu vệ sinh
- Miệng bể phốt xây cao hơn mặt đất tối thiểu 20cm.
- Bể phốt có nắp đậy kín, đảm bảo an toàn và vệ sinh.
- Trang bị hệ thống ống dẫn riêng đưa nước thải và chất thải về bể chứa, không xả trực tiếp.
- Có hệ thống chiếu sáng và thông gió đầy đủ, thiết kế đi âm tường gọn gàng.
- Lắp đặt biển báo, ký hiệu khu vệ sinh nam – nữ rõ ràng, thể hiện bằng tiếng Việt và tiếng Anh.
Xem thêm:
- Kích thước bồn tiểu nam tiêu chuẩn theo quy định mới nhất
- Kích thước lavabo, chậu rửa mặt tiêu chuẩn phổ biến nhất
5 bản vẽ nhà vệ sinh công cộng phổ biến
Dưới đây là các sơ đồ mặt bằng được ưa chuộng nhất hiện nay:
Bản vẽ nhà vệ sinh công cộng nhỏ 3 phòng
Mẫu bản vẽ này phù hợp với các khu vực có diện tích hạn chế như công viên nhỏ, khu dân cư, bãi giữ xe hoặc điểm dừng chân. Thiết kế tập trung vào các khu chức năng cơ bản, lối đi gọn gàng, thuận tiện cho việc vệ sinh và bảo trì. Dù diện tích nhỏ, không gian vẫn đảm bảo sự thông thoáng và riêng tư khi sử dụng.

Bản vẽ nhà vệ sinh nhỏ với 3 phòng vệ sinh (Nguồn: Internet)
Bản vẽ nhà vệ sinh công cộng 6 phòng cân đối
Đây là mẫu mặt bằng phổ biến tại các khu vực có lượng người sử dụng ở mức trung bình như trường học, chợ hoặc khu vui chơi. Các phòng vệ sinh được bố trí cân đối, phân chia nam – nữ rõ ràng, giúp giảm tình trạng quá tải vào giờ cao điểm. Thiết kế này vừa đảm bảo công năng, vừa tối ưu chi phí xây dựng.

Bản vẽ WC công cộng 6 phòng cân đối (Nguồn: Internet)
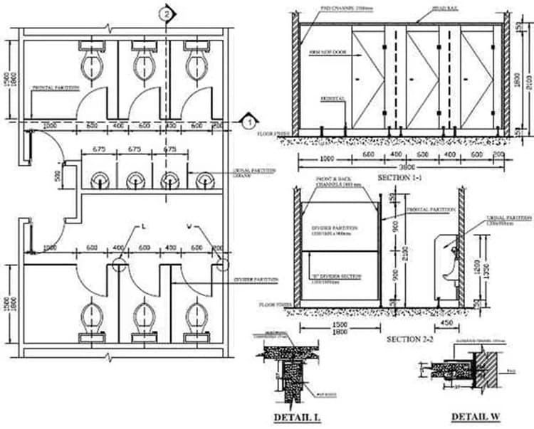
Bản vẽ nhà vệ sinh công cộng lớn 8 phòng
Mẫu bản vẽ toilet công cộng 8 phòng phù hợp với khu du lịch, bến xe hoặc khu vực tập trung đông người. Không gian được sắp xếp khoa học, tối ưu luồng di chuyển, hạn chế ùn tắc khi sử dụng cùng lúc. Ngoài ra, thiết kế vẫn đảm bảo yếu tố thông gió, ánh sáng và vệ sinh cho toàn bộ khu vực.

Bản vẽ WC công cộng có diện tích lớn 8 phòng (Nguồn: Internet)
Bản vẽ toilet công cộng hiện đại
Bản vẽ nhà vệ sinh công cộng hiện đại chú trọng đến tính thẩm mỹ và trải nghiệm người dùng. Thiết kế thường theo phong cách tối giản, bố cục rõ ràng, ưu tiên thông gió tự nhiên và ánh sáng hợp lý. Mẫu WC công cộng hiện đại phù hợp trung tâm thương mại, khu đô thị hoặc các công trình công cộng mới.

Bản vẽ toilet công cộng hiện đại (Nguồn: Internet)
Bản vẽ WC công cộng rộng rãi
Dành cho những khu vực có quy mô lớn như công viên trung tâm, quảng trường, khu lễ hội hoặc địa điểm du lịch đông khách. Diện tích rộng giúp phân khu chức năng rõ ràng, bố trí nhiều buồng vệ sinh, lối đi thoải mái và dễ dàng quản lý vệ sinh. Mẫu nhà vệ sinh công cộng này đáp ứng tốt nhu cầu sử dụng liên tục với tần suất cao.

Bản vẽ toilet công cộng rộng rãi, thoáng mát (Nguồn: Internet)
15 mẫu nhà vệ sinh công cộng bền, đẹp và tiện nghi
Mẫu WC công cộng hiện đại
Mẫu toilet công cộng hiện đại được thiết kế theo phong cách tối giản, bố cục khoa học sử dụng gam màu trung tính, chú trọng ánh sáng và thông gió. Đây là lựa chọn phù hợp với các công trình công cộng mới và trung tâm thương mại.

Mẫu nhà vệ sinh phong cách hiện đại, sạch sẽ

Mẫu WC tinh tế, tiện nghi
Mẫu nhà vệ sinh thiết kế tối giản
Mẫu toilet công cộng thiết kế tối giản tập trung vào công năng sử dụng, giảm bớt các chi tiết rườm rà, giúp tiết kiệm chi phí xây dựng và dễ dàng vệ sinh, bảo trì.

Mẫu nhà vệ sinh thiết kế tối giản với gam màu nâu be cực sang (Nguồn: Lixil.com)

Mẫu nhà vệ sinh tối giản kết hợp lavabo INAX bền đẹp ấn tượng (Nguồn: Lixil.com)
WC công cộng diện tích nhỏ
Nhà vệ sinh công cộng diện tích nhỏ phù hợp với khu dân cư, công viên nhỏ hoặc điểm dừng chân, được bố trí thông minh để tối ưu không gian nhưng vẫn đảm bảo tiện nghi cơ bản.

WC công cộng diện tích nhỏ nhưng đầy đủ công năng (Nguồn: Lixil.com)
Toilet công cộng diện tích lớn
Nhà vệ sinh công cộng diện tích lớn đáp ứng tốt nhu cầu tại các khu vực đông người như bến xe, quảng trường hay khu du lịch, với không gian rộng rãi và nhiều buồng vệ sinh.

Nhà vệ sinh có diện tích lớn trang bị thiết bị vệ sinh hiện đại
WC công cộng cao cấp
Nhà vệ sinh công cộng cao cấp chú trọng cả thẩm mỹ và trải nghiệm người dùng, sử dụng vật liệu bền đẹp và thiết bị vệ sinh chất lượng cao, phù hợp khách sạn và khu nghỉ dưỡng.

Toilet công cộng cao cấp tạo điểm nhấn với bồn rửa lavabo INAX cùng vòi cảm ứng sang trọng
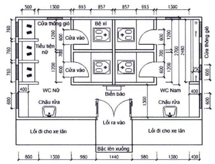
WC công cộng có khu vực cho người khuyết tật
Toilet công cộng có khu vực cho người khuyết tật được thiết kế theo tiêu chuẩn tiếp cận, với lối đi rộng, tay vịn và thiết bị phù hợp, đảm bảo an toàn và thuận tiện cho mọi đối tượng.

WC công cộng có khu vực dành cho người khuyết tật (Nguồn: Lixil.com)
Nhà vệ sinh công cộng ngoài trời
Mẫu nhà vệ sinh này sử dụng vật liệu chịu thời tiết tốt, chống thấm và chống trơn trượt, phù hợp với công viên, khu vui chơi và khu du lịch sinh thái.
Nhà vệ sinh công cộng tại trung tâm thương mại
Toilet công cộng tại trung tâm thương mại có thiết kế hiện đại, sạch sẽ, dễ nhận diện và đáp ứng tần suất sử dụng cao mỗi ngày.

Mẫu WC công cộng tại trung tâm thương mại lớn sạch sẽ, tiện nghi (Nguồn: Lixil.com)
Trên đây là 15+ mẫu nhà vệ sinh công cộng bền, đẹp, tiện nghi theo xu hướng 2026. Tùy vào quy mô và nhu cầu sử dụng, chủ đầu tư có thể lựa chọn thiết kế phù hợp để tối ưu công năng, đảm bảo độ bền và nâng cao trải nghiệm người dùng.
INAX là một thương hiệu thiết bị vệ sinh uy tín đến đến từ Nhật Bản, nổi tiếng với chất lượng, độ bền và thiết kế hiện đại. Liên hệ ngay với INAX để được tư vấn và trải nghiệm các thiết bị vệ sinh INAX như bồn cầu, bồn tiểu nam, bồn tắm, lavabo… chất lượng cao với chế độ bảo hành cực kỳ uy tín, giá siêu ưu đãi.
- Hotline: 18006633
- Email: inaxvietnam@lixil.com
- Hệ thống phân phối INAX
- Showroom:
- Hà Nội: Tầng 1,2 số 46 Bích Câu, phường Ô Chợ Dừa, Hà Nội.
- Đà Nẵng: Tầng 1,2 số 189 Điện Biên Phủ, phường Thanh Khê, thành phố Đà Nẵng.
- Hồ Chí Minh: 218 Bis, Nam Kỳ Khởi Nghĩa, phường Xuân Hòa, TP.HCM.