L-2398V(EC/FC)
Chậu rửa dương bàn
2,070,000 vnd
Kích thước và Tỷ lệ
| Depth | 450mm |
| Height | 170mm |
| Width | 550mm |
INAX L-2398V là mẫu chậu rửa mặt dương bàn (vành nổi), đại diện cho phong cách thiết kế vuông bầu hiện đại, tạo nên sự hài hòa và sang trọng cho mọi không gian phòng tắm. Sản phẩm không chỉ nổi bật với vẻ ngoài tinh tế mà còn đảm bảo chất lượng bền bỉ, dễ dàng vệ sinh nhờ chất liệu sứ cao cấp của INAX.

Thiết kế chậu rửa dương bàn L-2398V(EC/FC) vuông bầu, hiện đại và hài hòa
- Thiết kế với vành nổi, tạo điểm nhấn mạnh mẽ và cao cấp trên mặt bàn đá.
- Hình dáng cân đối, hài hòa, mang lại trải nghiệm thư giãn và dễ dàng phối hợp với các thiết bị nội thất khác.
- Khu vực lắp đặt vòi lavabo được thiết kế phẳng, giúp hạn chế bám bẩn tối đa và thuận tiện cho việc vệ sinh hàng ngày.
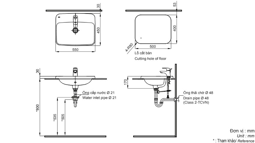
- Kích thước chậu 550 x 170 x 450 (mm), phù hợp với nhiều kích cỡ mặt bàn.
Chất liệu cao cấp, độ bền vượt trội
Chậu rửa dương bàn L-2398V (EC/FC) được chế tạo từ chất liệu sứ cao cấp với bề mặt được phủ men sứ sáng bóng, trơn láng. Chất liệu này đảm bảo chậu có độ bền bỉ cao, dễ lau chùi và luôn giữ được vẻ ngoài sạch sẽ, tinh tươm. Ngoài ra, sản phẩm bồn rửa mặt này còn được thiết kế tích hợp lỗ thoát tràn, tăng tính an toàn, tránh tình trạng nước bị tràn ra ngoài.
Tính linh hoạt trong lựa chọn vòi
Chậu rửa dương bàn L-2398V cung cấp hai tùy chọn lỗ vòi, cho phép người dùng tùy biến theo nhu cầu:
- L-2398VFC (Kiểu 1 lỗ): Lựa chọn lý tưởng cho các mẫu vòi lavabo 1 tay gạt hiện đại.
- L-2398VEC (Kiểu 3 lỗ): Phù hợp để gắn các loại vòi 1 tay gạt có đế rộng hoặc vòi 3 lỗ truyền thống.
Chậu có thể dùng với các mẫu vòi lavabo thân thấp, phổ biến như LFV-11A, LFV-1112S, LFV-2012S, LFV-1402S.
Video giới thiệu chậu rửa INAX
Bản vẽ lắp đặt chậu rửa dương bàn L-2398V(EC/FC)

Xem hướng dẫn lắp đặt: HDLD AL-2398V L-2398.pdf
Thông số kỹ thuật
| Chất liệu | Sứ cao cấp, men sứ sáng bóng, trơn láng |
| Kiểu dáng | Dương bàn (vành nổi) |
| Kích thước | 550 x 170 x 450 (mm) |
| Thiết kế | Thiết kế tinh tế, lỗ xả tràn tiện lợi, gồm có 2 loại: - EC: Chậu 3 lỗ gắn vòi 1 tay gạt - FC: Chậu 1 lỗ |
| Thương hiệu | INAX |
| Màu sắc | Trắng |
| Khác | - Kết hợp với các sản phẩm mẫu vòi lavabo thân thấp, phổ biến như LFV-11A, LFV-1112S, LFV-2012S, LFV-1402S. - Sản phẩm không bao gồm phụ kiện đi kèm như vòi, bộ xả,... - Hotline tư vấn và bảo hành: 18006633 |
Tải xuống
CAD Files
Installation Files
3D Max Files
Spec Files

